Fnaim.fr
Menu

Acheter

Exclusivité
Réf. 2308

Achat Maison 4 pièces 79m² LA ROCHE SUR YON 85000

241 500 Honoraires charge acquéreur inclus : 5% TTC (230000 € hors honoraires)

3 chambres Parking / Garage

Description du bien

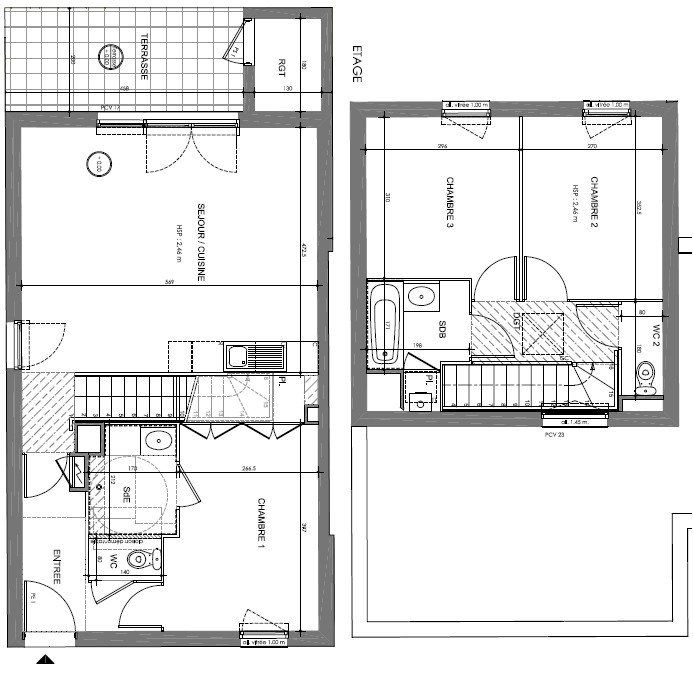
A deux pas de la Place Napoléon, cette agréable maison datant de 2016, d'environ 78 m2 sur deux niveaux offre confort, fonctionnalité et espace extérieur. Au rez-de-chaussée, vous découvrirez une cuisine aménagée et équipée, ouverte sur un séjour lumineux, une chambre avec dressing, une salle d'eau et WC séparés.
À l'étage, l'espace nuit se compose de deux chambres, une salle de bains et un WC indépendant.
À l'extérieur, profitez d'un jardinet et d'une terrasse privatifs, parfaits pour les moments de détente. La maison dispose également d'une place de parking et d'un emplacement boxé.
Le bien est en copropriété horizontale.
Disponible en juin 2026.
Les informations sur les risques auxquels ce bien est exposé sont disponibles sur le site Géorisques : www.georisques.gouv.fr

Etat des risques et pollutions

Les informations sur les risques auxquels ce bien est exposé sont disponibles sur le site Géorisques : www.georisques.gouv.fr.

Caractéristiques du bien

Composition du bien

  • Type d'habitation : Maison
  • Nombre de chambres : 3
  • Nombre de salles de bain : 1

Aménagement du bien

  • Cave : Non
  • Garage / Parking : Oui
    • Surface habitable : 79 m²
    • Parking : Oui

    Localisation du bien

    LA ROCHE SUR YON (85000) , VENDEE (85) - PAYS-DE-LA-LOIRE

    Ce bien n'est pas géolocalisé, pour connaitre sa géolocalisation, merci de contacter l'agence.

    Consommation énergétique

    • B (75 kWh/m² an)
      C (14 kgCO2/m².an)
      Plus d'info
      75
      14
      14
    • DPE réalisé après le 1er juillet 2021.
    • Entre 680 € TTC / an et 960 € TTC / an
      01/01/2021

    Nos professionnels vous accompagnent

    Contactez notre agence !

    1, rue Serpentine 85000 LA ROCHE SUR YON

    Appeler l’agence Tél : 02 51 37 09 09

    * Champs obligatoires

    Nous vous informons de l’existence de la liste d’opposition au démarchage téléphonique « BLOCTEL » sur laquelle vous pouvez vous inscrire (https://www.bloctel.gouv.fr).

    En complétant le formulaire «CONTACTEZ NOTRE AGENCE », je reconnais expressément que je consens au traitement de mes données personnelles et que je dispose du droit de retirer mon consentement à tout moment en m'adressant à support@fnaim.fr.
    En savoir plus sur la gestion de vos données et droits : consulter nos mentions légales, « article 5/ Données à caractère personnel ».

    En envoyant ce message, vous acceptez les conditions d'utilisation du site. Plus d'infos