Fnaim.fr
Menu

Acheter

Réf. VA2101-AGENCEPLAGE

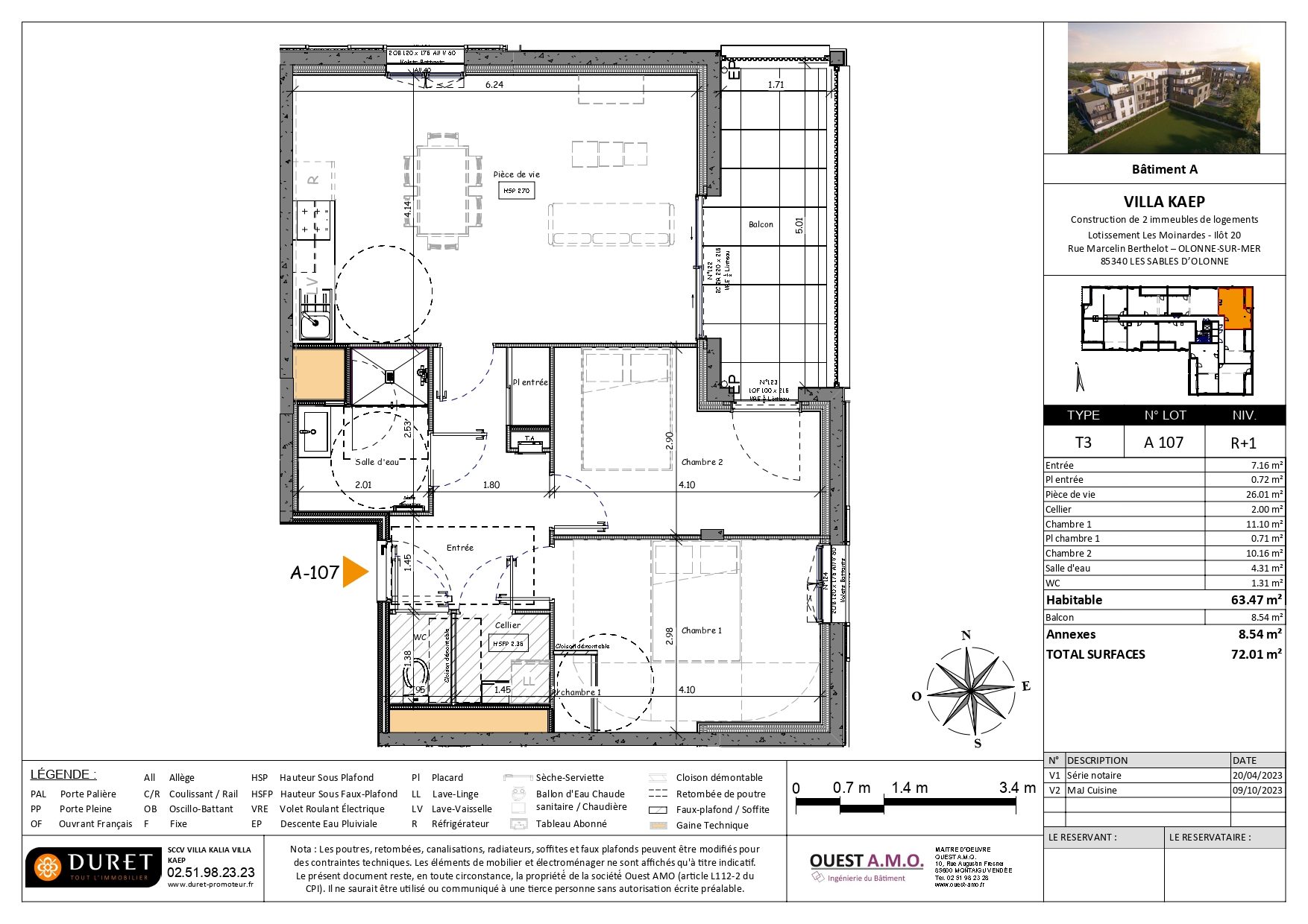
Achat Appartement 3 pièces 63m² LES SABLES D’OLONNE 85340

297 000 Honoraires charge acquéreur inclus : 6% TTC (280188 € hors honoraires)

2 chambres Balcon Ascenseur Parking / Garage

Description du bien

T3 situé dans une résidence neuve à taille humaine, comprenant une entrée, un séjour avec cuisine aménagée et équipée (plaques induction 3 feux, hotte, four), un cellier, deux chambres, une salle d'eau, un WC indépendant, un grand balcon, et une loggia. Conforme aux normes PMR, le logement bénéficie de deux places de stationnement privatives. Environnement verdoyant à deux pas du centre Ylium, des transports et des axes routiers. DPE en cours ? Livraison décembre 2025. Frais de notaire réduits.

Honoraires inclus de 6% TTC à la charge de l'acquéreur. Prix hors honoraires 280 189 ?. Dans une copropriété de 26 lots. Aucune procédure n'est en cours. DPE en cours. Les informations sur les risques auxquels ce bien est exposé sont disponibles sur le site Géorisques : georisques.gouv.fr.

Etat des risques et pollutions

Les informations sur les risques auxquels ce bien est exposé sont disponibles sur le site Géorisques : www.georisques.gouv.fr.

Caractéristiques du bien

Composition du bien

  • Type d'habitation : Appartement
  • Nombre de pièce(s) : 3
  • Nombre de chambre(s) : 2

Aménagement du bien

Extérieur

  • Terrasse : Non
  • Balcon : Oui

Partie Commune

  • Ascenseur : Oui
  • Surface habitable : 63 m²
  • Parking : Oui

Informations sur la copropriété

  • Bien soumis au statut de la copropriété
  • Nombre de lots : 26
  • Procédure en cours : Non

Localisation du bien

LES SABLES D’OLONNE (85340) , VENDEE (85) - PAYS-DE-LA-LOIRE

Ce bien n'est pas géolocalisé, pour connaitre sa géolocalisation, merci de contacter l'agence.

Consommation énergétique

  • 0 (90 kWh/m² an)
    Non communiqué
    Plus d'info
    90
    N/C
  • DPE réalisé après le 1er juillet 2021.
  • Entre 600 € TTC / an et 880 € TTC / an
    01/01/2021

Nos professionnels vous accompagnent

Contactez notre agence !

64, promenade Georges Clemenceau 85100 LES SABLES D OLONNE

Appeler l’agence Tél : 0251210236

* Champs obligatoires

Nous vous informons de l’existence de la liste d’opposition au démarchage téléphonique « BLOCTEL » sur laquelle vous pouvez vous inscrire (https://www.bloctel.gouv.fr).

En complétant le formulaire «CONTACTEZ NOTRE AGENCE », je reconnais expressément que je consens au traitement de mes données personnelles et que je dispose du droit de retirer mon consentement à tout moment en m'adressant à support@fnaim.fr.
En savoir plus sur la gestion de vos données et droits : consulter nos mentions légales, « article 5/ Données à caractère personnel ».

En envoyant ce message, vous acceptez les conditions d'utilisation du site. Plus d'infos