Fnaim.fr
Menu

Acheter

Réf. 2_AS-2149

Achat Local commercial 163m² PROPRIANO 20110

180 000 Honoraires charge vendeur

Description du bien

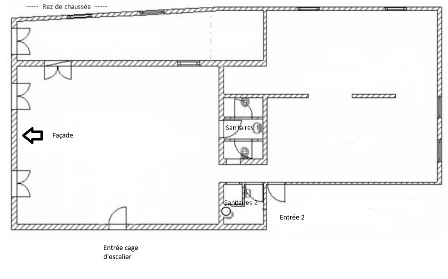
L'agence SCAGLIA IMMO PROPRIANO vous propose à la vente des murs commerciaux en plein centrre de Propriano. Ce bien est composé de trois lots, deux locaux avec vitrine en façade et d'un lot arrière avec son entrée privative qui pourrait être aménagé soit en arrière boutique ou en appartement.
Des travaux ont été effectués dans la partie donnant sur la rue. Idéal pour une activité libérale, artisanale. Bon rapport locatif. Les informations sur les risques auxquels ce bien est exposé sont disponibles sur le site Géorisques : www.georisques.gouv.fr

Etat des risques et pollutions

Les informations sur les risques auxquels ce bien est exposé sont disponibles sur le site Géorisques : www.georisques.gouv.fr.

Caractéristiques du bien

Composition du bien

  • Surface totale : 163 m²

Consommation énergétique

DPE non soumis
mention indiquée sous la responsabilité de l’agence immobilière

Nos professionnels vous accompagnent

Contactez notre agence !

ANCIEN BAR DES AMIS - PORTICCIO - 512 BOULEVARD MARIE-JEANNE BOZZI 20166 GROSSETO PRUGNA

Appeler l’agence Tél : 04 95 10 81 39

* Champs obligatoires

Nous vous informons de l’existence de la liste d’opposition au démarchage téléphonique « BLOCTEL » sur laquelle vous pouvez vous inscrire (https://www.bloctel.gouv.fr).

En complétant le formulaire «CONTACTEZ NOTRE AGENCE », je reconnais expressément que je consens au traitement de mes données personnelles et que je dispose du droit de retirer mon consentement à tout moment en m'adressant à support@fnaim.fr.
En savoir plus sur la gestion de vos données et droits : consulter nos mentions légales, « article 5/ Données à caractère personnel ».

En envoyant ce message, vous acceptez les conditions d'utilisation du site. Plus d'infos