Achat Appartement 1 pièce 30m²
128 000 € Honoraires charge vendeur
Parking / Garage
                        
            
                                 LES ANNONCES
                            
        
        
                
            Acheter
                            
        
                
            
                                LES ANNONCES
                            
        
        
                
            Acheter
        
    
Parking / Garage
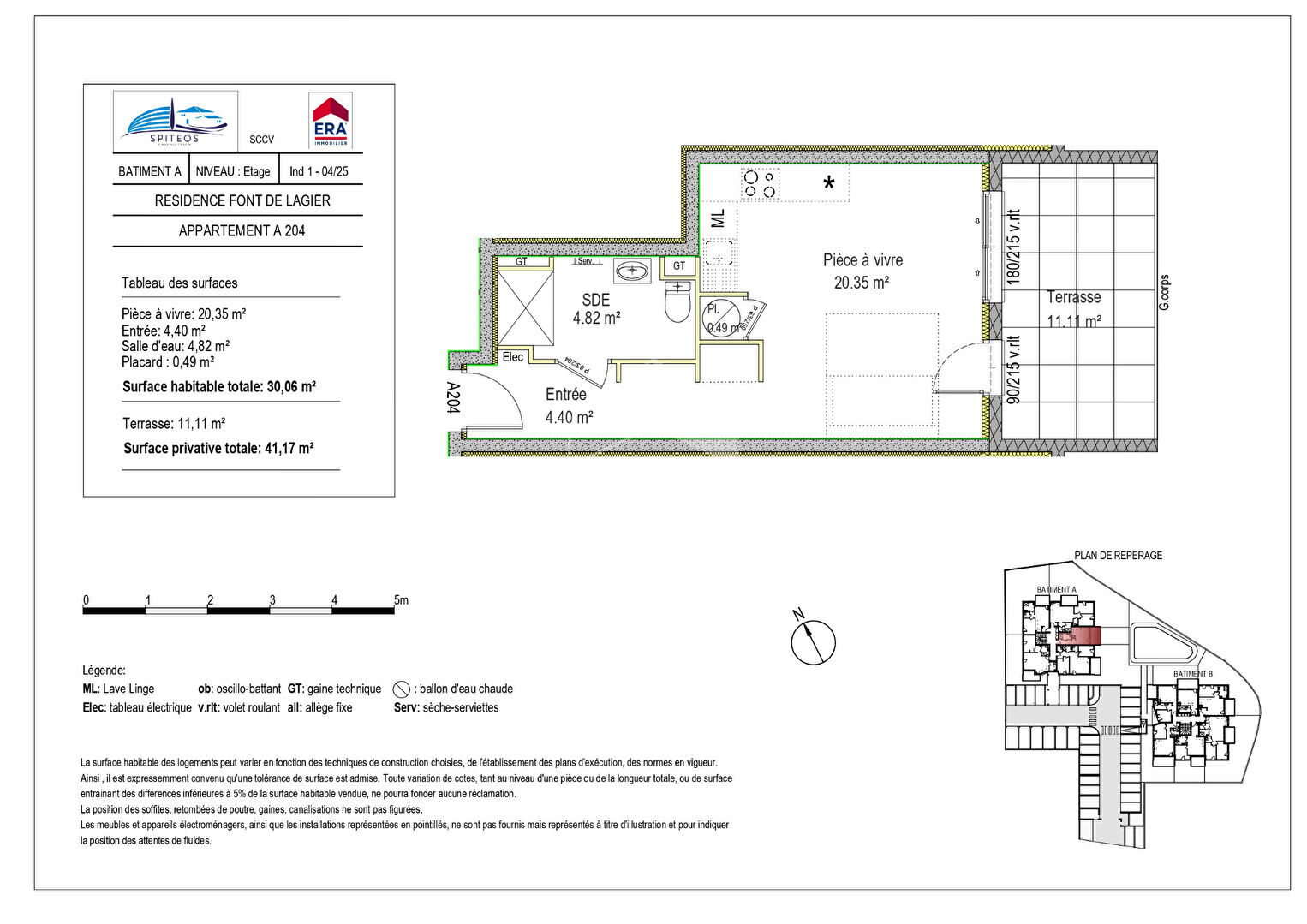
Appartement neuf en Vefa sur Volx
Dans une petite copropriété de 21 logements avec terrasses, jardins, parkings, garages sur la commune de Volx à 5 min de Manosque et de l'autoroute A51
Très beau studio avec un grand salon avec cuisine ouverte.
Terrasse de 11m² pour profiter de l'exposition Sud.
volets électriques domotiques, climatisation chauf/froid individuelle.
Possibilité de parking et/ou de garage.
Livraison fin 2026
                            DPE non soumis
                            mention indiquée sous la responsabilité de l’agence immobilière