Achat Appartement 2 pièces 45m²
174 000 € Honoraires charge vendeur
1 chambre
                        
            
                                 LES ANNONCES
                            
        
        
                
            Acheter
                            
        
                
            
                                LES ANNONCES
                            
        
        
                
            Acheter
        
    
1 chambre
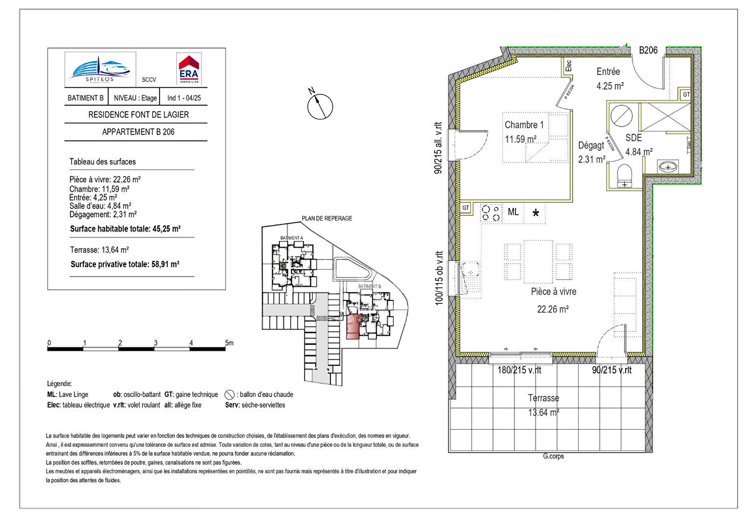
Appartement neuf en Vefa sur Volx
Dans une petite copropriété de 21 logements avec terrasses, jardins, parkings, garages sur la commune de Volx à 5 min de Manosque et de l'autoroute A51
Très beau T2 avec 1 chambre, un grand salon avec cuisine ouverte.
Terrasse de 14m² pour profiter de l'exposition Sud.
volets électriques domotiques, climatisation chauf/froid individuelle.
Possibilité de parking et/ou de garage.
Livraison fin 2026
                            DPE non soumis
                            mention indiquée sous la responsabilité de l’agence immobilière