Fnaim.fr
Menu

Acheter

Réf. 393376RSH

Achat Maison 4 pièces 100m² LABASTIDE MARNHAC 46090

219 000 Honoraires charge vendeur

3 chambres Jardin Parking / Garage

Description du bien

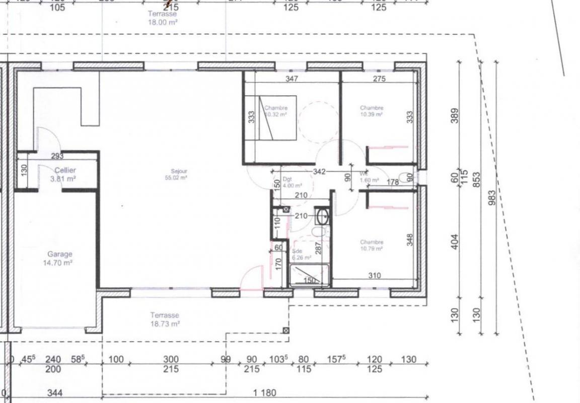
46090 Labastide-Marnhac - maison neuve d'environ 101 m², 4 pièces, 3 chambres, avec garage, sur environ 500 m² de terrain entièrement clôturé avec portail électrique.
Actuellement en fin de construction, sera livrée totalement achevée et immédiatement habitable pour la vente : toutes finitions intérieures (peintures, carrelages, faïences, penderies aménagées, cuisine et salle de bain équipées), et extérieures (terrasses carrelées, terrassement, grillage et portail électrique posé, parking castine et engazonnement).
Situation recherchée et prestations de qualité pour cette maison type villa, idéalement située (bourg avec école, commerces, et services de proximité accessibles à pied) , à seulement 10 minutes au sud-ouest de Cahors.
Elle comprend une belle pièce de vie de plus 55 m², lumineuse et traversante, avec cuisine ouverte, aménagée et équipée à neuf (sauf réfrigérateur), ouverte sur deux terrasses de plus de 18 m², cellier avec accès au garage.
Espace nuit composé de 3 chambres avec penderies, salle d'eau (douche italienne, double vasque, sèche-serviette) et WC indépendant.
Chauffage Pompe à chaleur, huisseries DV, volets motorisés, performances thermiques norme RT 2012, assainissement individuel (micro-station), fibre disponible.
Possibilité de personnaliser certains choix de finition (faïence, peintures), garantie décennale, frais de notaire réduits.
(Une seconde maison individuelle, conçue à l'identique, sera construite sur la parcelle adjacente et disponible à la vente en 2026, idéal projet d'habitat multi-générationnel).
Les informations sur les risques auxquels ce bien est exposé sont disponibles sur le site Géorisques http://www.georisques.gouv.fr.
Prix de vente : 219 000 euros HAI, honoraires charge vendeur.
Ref mandat : 393 376
Contactez Stéphanie CARON au 06 35 29 89 13 ou par courriel à s.caron@proprietes-privees.com.
Cette présente annonce a été rédigée sous la responsabilité éditoriale de Stéphanie CARON, conseiller immobilier auprès de la SAS PROPRIETES-PRIVEES - ZAC du Chêne Ferré, 44 allée des Cinq Continents 44120 VERTOU, Carte professionnelle CPI 4401 2016 000 010 388 délivrée par la CCI Nantes - Saint-Nazaire. SIRET 487624777 RCS NANTES.

Etat des risques et pollutions

Les informations sur les risques auxquels ce bien est exposé sont disponibles sur le site Géorisques : www.georisques.gouv.fr.

Caractéristiques du bien

Composition du bien

  • Type d'habitation : Maison
  • Nombre de chambres : 3
  • Nombre de salles de bain : 1
  • Cuisine : 18

Aménagement du bien

  • Cave : Non
  • Garage / Parking : Oui
    • Surface habitable : 100 m²
    • Parking : Oui

    Localisation du bien

    LABASTIDE MARNHAC (46090) , LOT (46) - OCCITANIE

    Ce bien n'est pas géolocalisé, pour connaitre sa géolocalisation, merci de contacter l'agence.

    Consommation énergétique

    DPE non soumis
    mention indiquée sous la responsabilité de l’agence immobilière

    Nos professionnels vous accompagnent

    Contactez notre agence !

    44 Allée des Cinq Continents ZAC Le Chêne Ferré 44120 VERTOU

    Appeler l’agence Tél : 06 35 29 89 13

    * Champs obligatoires

    Nous vous informons de l’existence de la liste d’opposition au démarchage téléphonique « BLOCTEL » sur laquelle vous pouvez vous inscrire (https://www.bloctel.gouv.fr).

    En complétant le formulaire «CONTACTEZ NOTRE AGENCE », je reconnais expressément que je consens au traitement de mes données personnelles et que je dispose du droit de retirer mon consentement à tout moment en m'adressant à support@fnaim.fr.
    En savoir plus sur la gestion de vos données et droits : consulter nos mentions légales, « article 5/ Données à caractère personnel ».

    En envoyant ce message, vous acceptez les conditions d'utilisation du site. Plus d'infos