Fnaim.fr
Menu

Acheter

Réf. 86172536

Achat Appartement 4 pièces 66m² ST ETIENNE 42100

64 000 Honoraires charge vendeur

3 chambres Balcon

Description du bien

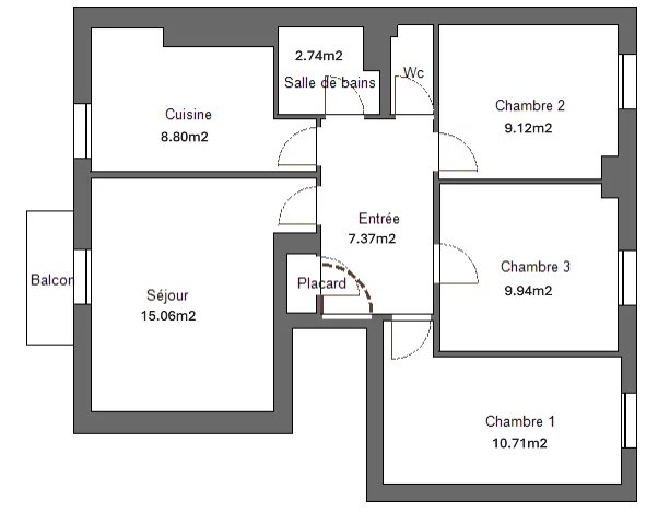
Appartement T4 avec balcon et stationnement – Saint-Étienne Centre Deux

Dans le secteur prisé de Saint-Étienne Centre Deux, découvrez cet appartement T4 de 65 m² situé au 1er étage d’un petit immeuble de seulement 2 étages et 6 lots, alliant confort de vie et opportunité d’investissement.

Un intérieur fonctionnel et modulable
- Séjour lumineux prolongé par un balcon
- 3 chambres spacieuses
- Cuisine récente, encore sous garantie

Possibilité d’ouvrir la cuisine sur le salon pour créer un espace de vie convivial de près de 25 m².
Une cave complète ce bien


Chauffage individuel au gaz
Stationnement privé devant l’immeuble
Faibles charges de copropriété : 50 €/mois
Taxe foncière : 700 €

Un investissement attractif

Anciennement loué 600 €/mois, cet appartement offre une rentabilité brute de 11,25 %, rare sur le marché.
Une opportunité idéale pour un investisseur à la recherche d’un bien sécurisé, rentable et bien situé.

Informations clés

Typologie : T4 – 65 m²
Extérieur : Balcon
Annexe : Cave
Copropriété : 6 lots / charges faibles
Stationnement : Privatif

Un bien polyvalent, à la fois adapté à un projet de résidence principale ou à un placement...

Etat des risques et pollutions

Les informations sur les risques auxquels ce bien est exposé sont disponibles sur le site Géorisques : www.georisques.gouv.fr.

Caractéristiques du bien

Composition du bien

  • Type d'habitation : Appartement
  • Nombre de pièce(s) : 4
  • Nombre de chambre(s) : 3

Aménagement du bien

Extérieur

  • Terrasse : Non
  • Balcon : Oui

Partie Commune

  • Ascenseur : Non
  • Surface habitable : 66 m²

Informations sur la copropriété

  • Bien soumis au statut de la copropriété
  • Nombre de lots : 20
  • Procédure en cours : Non

Localisation du bien

ST ETIENNE (42100) , LOIRE (42) - AUVERGNE-RHÔNE-ALPES

Ce bien n'est pas géolocalisé, pour connaitre sa géolocalisation, merci de contacter l'agence.

Consommation énergétique

  • E (246 kWh/m² an)
    E (53 kgCO2/m².an)
    Plus d'info
    246
    53
    53
  • DPE réalisé après le 1er juillet 2021.
  • Entre 1490 € TTC / an et 2030 € TTC / an
    01/01/2021

Nos professionnels vous accompagnent

Contactez notre agence !

6 RUE ETIENNE MIMARD 42000 ST ETIENNE

Appeler l’agence Tél : +33 6 51 12 37 19

* Champs obligatoires

Nous vous informons de l’existence de la liste d’opposition au démarchage téléphonique « BLOCTEL » sur laquelle vous pouvez vous inscrire (https://www.bloctel.gouv.fr).

En complétant le formulaire «CONTACTEZ NOTRE AGENCE », je reconnais expressément que je consens au traitement de mes données personnelles et que je dispose du droit de retirer mon consentement à tout moment en m'adressant à support@fnaim.fr.
En savoir plus sur la gestion de vos données et droits : consulter nos mentions légales, « article 5/ Données à caractère personnel ».

En envoyant ce message, vous acceptez les conditions d'utilisation du site. Plus d'infos