Fnaim.fr
Menu

Acheter

Réf. 1_LS-1965

Achat Maison 6 pièces 280m² GROSSETO PRUGNA 20128

922 000 Honoraires charge vendeur

5 chambres Jardin Parking / Garage

Description du bien

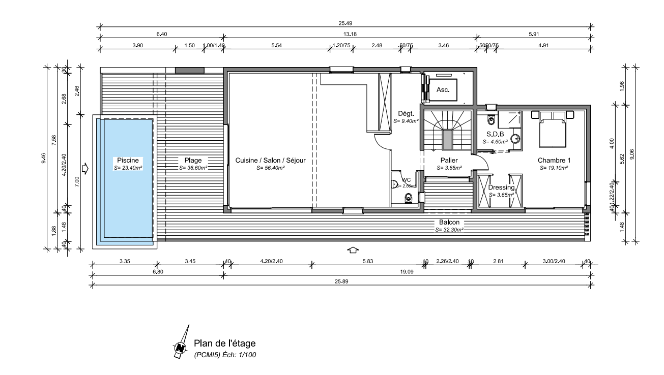
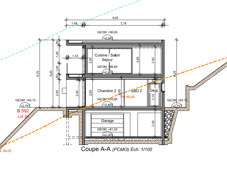
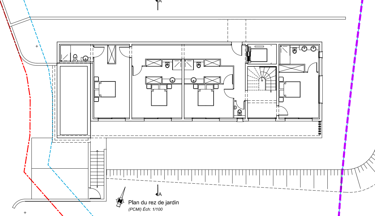
L'agence SCAGLIA Immo vous propose ce projet immobilier de standing sur la commune de Pietrosella dans un lotissement avec vue mer à 15 minutes du centre de Porticcio et de ces commerces. Cette réalisation vous est proposée hors eau hors air. Plans pour une villa de type 6 avec quatre chambres, salles de bain et dressing en rdc, séjour, cuisine et buanderie et une suite parentale en R+1. Un sous-sol à usage de garage pourra être aménager, en bureau voir d'un appartement supplémentaire.
Piscine à débordement. Baies coulissantes, volets électriques.
Belle vue dégagée sur le golfe d'Ajaccio.et la verte campagne. Belle exposition, construction en hauteur avec beaucoup de luminosité. Secteur trés calme.
Contact : Agence SCAGLIA Immo - 40, cours Lucien Bonaparte - 20000 Ajaccio. Les informations sur les risques auxquels ce bien est exposé sont disponibles sur le site Géorisques : www.georisques.gouv.fr

Etat des risques et pollutions

Les informations sur les risques auxquels ce bien est exposé sont disponibles sur le site Géorisques : www.georisques.gouv.fr.

Caractéristiques du bien

Composition du bien

  • Type d'habitation : Maison
  • Nombre de chambres : 5
  • Nombre de salles de bain : 2

Aménagement du bien

  • Cave : Non
  • Garage / Parking : Oui
    • Surface habitable : 280 m²
    • Parking : Oui

    Localisation du bien

    GROSSETO PRUGNA (20128) , CORSE-DU-SUD (2A)

    Ce bien n'est pas géolocalisé, pour connaitre sa géolocalisation, merci de contacter l'agence.

    Consommation énergétique

    DPE non soumis
    mention indiquée sous la responsabilité de l’agence immobilière

    Nos professionnels vous accompagnent

    Contactez notre agence !

    ANCIEN BAR DES AMIS - PORTICCIO - 512 BOULEVARD MARIE-JEANNE BOZZI 20166 GROSSETO PRUGNA

    Appeler l’agence Tél : 04 95 71 60 04

    * Champs obligatoires

    Nous vous informons de l’existence de la liste d’opposition au démarchage téléphonique « BLOCTEL » sur laquelle vous pouvez vous inscrire (https://www.bloctel.gouv.fr).

    En complétant le formulaire «CONTACTEZ NOTRE AGENCE », je reconnais expressément que je consens au traitement de mes données personnelles et que je dispose du droit de retirer mon consentement à tout moment en m'adressant à support@fnaim.fr.
    En savoir plus sur la gestion de vos données et droits : consulter nos mentions légales, « article 5/ Données à caractère personnel ».

    En envoyant ce message, vous acceptez les conditions d'utilisation du site. Plus d'infos