Fnaim.fr
Menu

Acheter

Réf. 1_PYTHON

Achat Appartement 2 pièces 65m² GRENOBLE 38000

189 000 Honoraires charge vendeur

1 chambre Parking / Garage

Description du bien

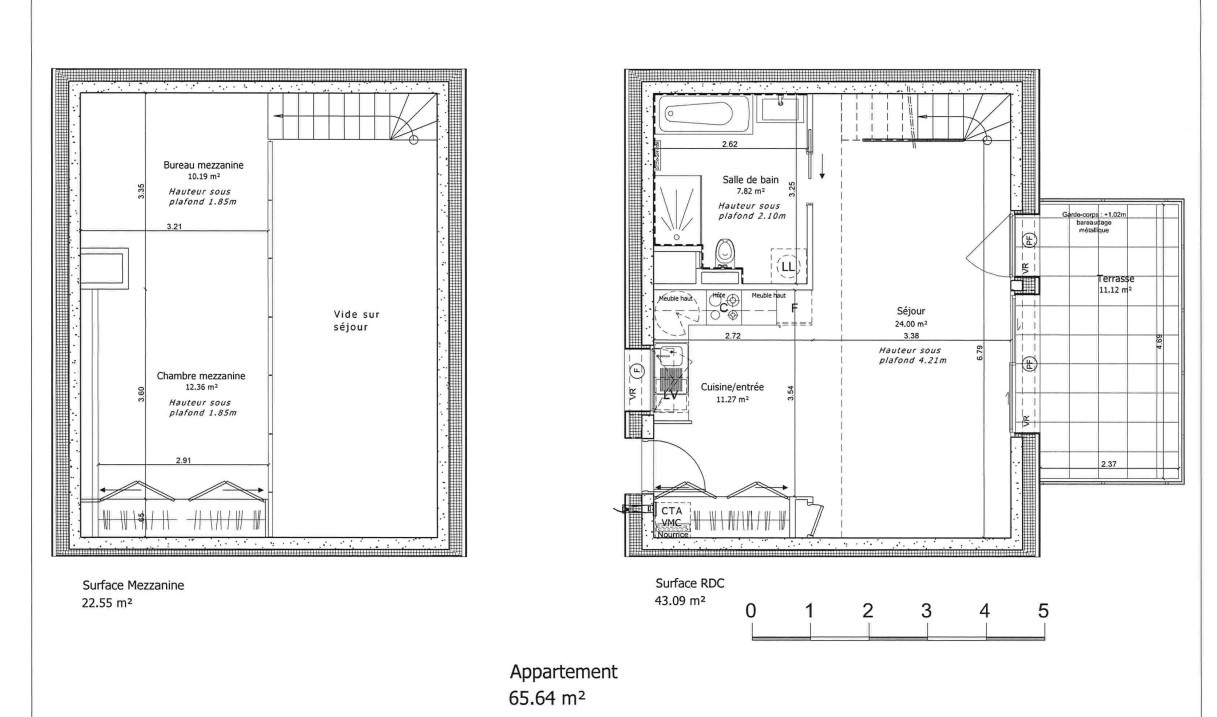
Bien rare, situé 13 rue René Maus (face au CEA, à l'angle de l'avenue des Martyrs), venez découvrir ce loft atypique de 65.64 m2 en rez de terrasse d'un bâtiment de 2 étages livré en 2017, situé au coeur d'un Eco Quartier offrant des prestations de qualité (rafraichissement d'air l'été, double vitrage haute performance, ventilation Double Flux...). Il comprend une entrée avec grand placard aménagé, un séjour avec une belle hauteur sous plafond de 4.21 M et cuisine ouverte équipée et aménagée (table de cuisson, four, hotte, lave vaisselle, refrigérateur/congélateur) de 35 m2 donnant accès sur une Terrasse de 11.12 m2, une chambre de 12.36 m2 en mezzanine avec dressing aménagé et espace bureau de 10.19 m2 , une jolie salle de bains moderne avec baignoire, douche, wc ainsi qu'un emplacement machine à laver. Une place de Parking situé dans Silo de la mobilité (sécurisé et surveillé) à proximité est incluse dans la location. Quartier Presqu'ile-Europole / Arrêt tramway CEA ligne B / Proximité des lignes de bus C5, C6, 22, 24 et Navette Aéroport Lyon Saint Exupery / Proximité gare SNCF, routière et lycée international / Proximité autoroute A480 / Polygone scientifique (CNRS, CEA, Minatec, STMicrolectronics, ILL/ESRF, Corys, IBS, Schneider Electric, Biomerieux...), accès aisé au centre ville de Grenoble Europole et Victor Hugo en tramway ainsi qu'aux voies rapides. Pour tout renseignement ou visite : MME SECCO Anita au 06.42.95.43.93

Etat des risques et pollutions

Les informations sur les risques auxquels ce bien est exposé sont disponibles sur le site Géorisques : www.georisques.gouv.fr.

Caractéristiques du bien

Composition du bien

  • Type d'habitation : Appartement
  • Nombre de pièce(s) : 2
  • Nombre de chambre(s) : 1
  • Salles de bain : 1

Aménagement du bien

Extérieur

  • Terrasse : Non
  • Balcon : Non

Partie Commune

  • Ascenseur : Non
  • Surface habitable : 65 m²
  • Parking : Oui

Localisation du bien

GRENOBLE (38000) , ISERE (38) - AUVERGNE-RHÔNE-ALPES

Ce bien n'est pas géolocalisé, pour connaitre sa géolocalisation, merci de contacter l'agence.

Consommation énergétique

  • C (113 kWh/m² an)
    A (3 kgCO2/m².an)
    Plus d'info
    113
    3
    3
  • DPE réalisé après le 1er juillet 2021.
  • Entre 540 € TTC / an et 770 € TTC / an
    01/01/2023

Nos professionnels vous accompagnent

Contactez notre agence !

20 BD EDOUARD REY 38000 GRENOBLE

Appeler l’agence Tél : 04 76 48 59 89

* Champs obligatoires

Nous vous informons de l’existence de la liste d’opposition au démarchage téléphonique « BLOCTEL » sur laquelle vous pouvez vous inscrire (https://www.bloctel.gouv.fr).

En complétant le formulaire «CONTACTEZ NOTRE AGENCE », je reconnais expressément que je consens au traitement de mes données personnelles et que je dispose du droit de retirer mon consentement à tout moment en m'adressant à support@fnaim.fr.
En savoir plus sur la gestion de vos données et droits : consulter nos mentions légales, « article 5/ Données à caractère personnel ».

En envoyant ce message, vous acceptez les conditions d'utilisation du site. Plus d'infos