Fnaim.fr
Menu

Acheter

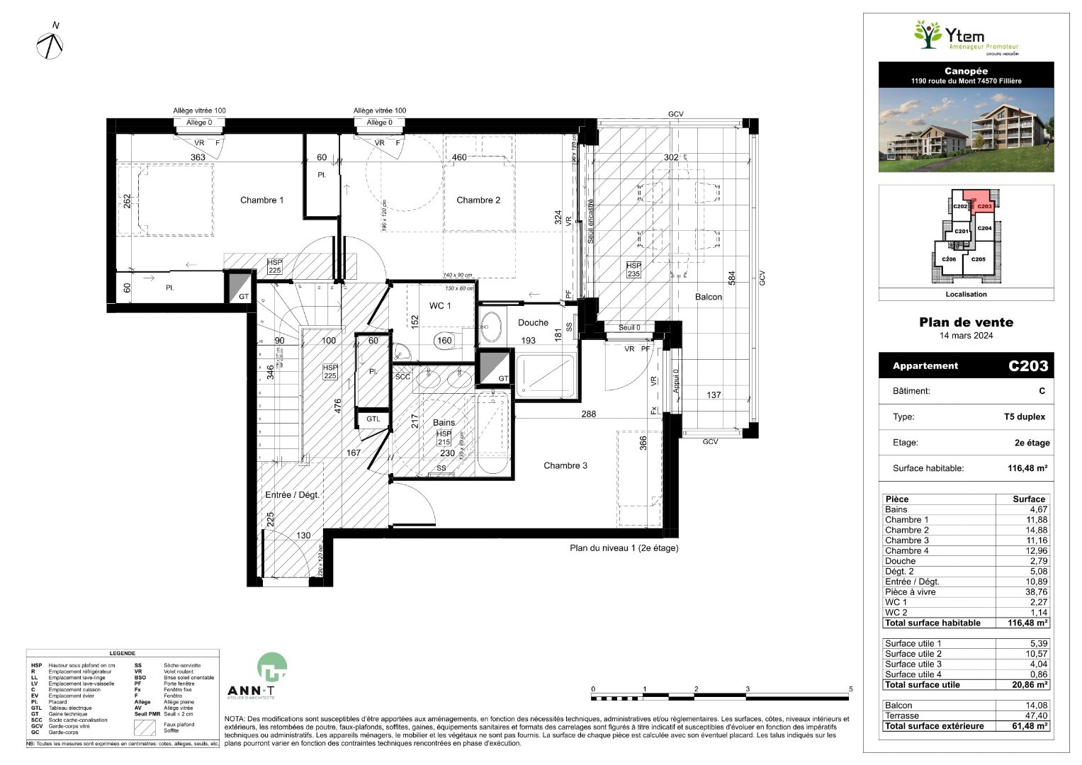
Appartement 5 pièces 116m² FILLIÈRE 74370 FILLIÈRE
Réf. 7400235421

Achat Appartement 5 pièces 116m² FILLIÈRE 74370

751 000 Honoraires charge vendeur

4 chambres Balcon Ascenseur Parking / Garage

Description du bien

Bénéficiez d'une offre commerciale exclusive de lancement de 25 000 € pour la première réservation d'un type 5 !

Appartement de type 5 duplex de 116.48m² + 20.86m² utiles, avec deux terrasses de 47.40m² et 14.08m².
Avec une vue panoramique sur le Parmelan, la chaine des Aravis et le Massif du Jura. 2 salle de bains, 3 chambres, nombreux rangements.
En annexe un garage (possibilité d'un 2ème) et une cave inclus dans le prix

Prix de vente 751 000€ - Livraison 1er semestre 2027

Nichée sur les hauteurs de Saint-Martin-Bellevue, la Résidence Canopée offre un cadre de vie exceptionnel alliant confort et sérénité. Composée de 40 logements répartis sur trois bâtiments (du T2 au T5), elle s'intègre harmonieusement dans un environnement verdoyant, avec un accès direct au Golf du Belvédère.

Un cadre de vie privilégié:
- Bâtiments à taille humaine sur deux niveaux avec ascenseur
- Espaces verts collectifs propices à la détente
- Local deux-roues sécurisé
- Stationnements variés : parkings aériens extérieurs, parkings sécurisés en sous-sol et garages privatifs

Des prestations modernes et durables:
- Vidéophone pour chaque logement
- Chauffage et eau chaude raccordés au réseau de chaleur urbain, avec comptage individuel
- Conforme à la norme RE 2020, garantissant performance énergétique et confort thermique

Un emplacement stratégique:
Située à seulement 10 minutes d'Annecy et bénéficiant d'un accès rapide à l'A41, la Résidence Canopée permet de rejoindre aisément Chambéry, Annecy et Genève.

Vivre à Saint-Martin-Bellevue:
Saint-Martin-Bellevue, aujourd'hui intégrée à la commune nouvelle de Fillière, séduit par son cadre naturel préservé, son dynamisme local et sa proximité avec les grands pôles économiques. Offrant un véritable art de vivre entre lac et montagnes, la commune dispose d'écoles, commerces et services essentiels pour un quotidien facilité.

Idéal pour les amoureux de la nature et des loisirs en plein air, ce cadre privilégié vous permet de profiter des randonnées, du golf, des stations de ski proches et des rives du lac d'Annecy.
Venez découvrir la Résidence Canopée, où confort, modernité et nature se rencontrent pour un cadre de vie unique.

Etat des risques et pollutions

Les informations sur les risques auxquels ce bien est exposé sont disponibles sur le site Géorisques : www.georisques.gouv.fr.

Caractéristiques du bien

Composition du bien

  • Type d'habitation : Appartement
  • Cuisine : Nue
  • Nombre de pièce(s) : 5
  • Nombre de chambre(s) : 4
  • Salles de bain : 1

Aménagement du bien

Extérieur

  • Terrasse : Non
  • Balcon : Oui

Partie Commune

  • Ascenseur : Oui
  • Surface habitable : 116 m²
  • Parking : Oui

Informations sur la copropriété

  • Bien soumis au statut de la copropriété
  • Nombre de lots : 18
  • Procédure en cours : Non

Localisation du bien

FILLIÈRE (74370) , HAUTE-SAVOIE (74) - AUVERGNE-RHÔNE-ALPES

Ce bien n'est pas géolocalisé, pour connaitre sa géolocalisation, merci de contacter l'agence.

Consommation énergétique

DPE non soumis
mention indiquée sous la responsabilité de l’agence immobilière

Nos professionnels vous accompagnent

Contactez notre agence !

10 RUE DE LA LIBERTE 74330 EPAGNY METZ TESSY

Appeler l’agence Tél : 0450577879

* Champs obligatoires

Nous vous informons de l’existence de la liste d’opposition au démarchage téléphonique « BLOCTEL » sur laquelle vous pouvez vous inscrire (https://www.bloctel.gouv.fr).

En complétant le formulaire «CONTACTEZ NOTRE AGENCE », je reconnais expressément que je consens au traitement de mes données personnelles et que je dispose du droit de retirer mon consentement à tout moment en m'adressant à support@fnaim.fr.
En savoir plus sur la gestion de vos données et droits : consulter nos mentions légales, « article 5/ Données à caractère personnel ».

En envoyant ce message, vous acceptez les conditions d'utilisation du site. Plus d'infos