Fnaim.fr
Menu

Acheter

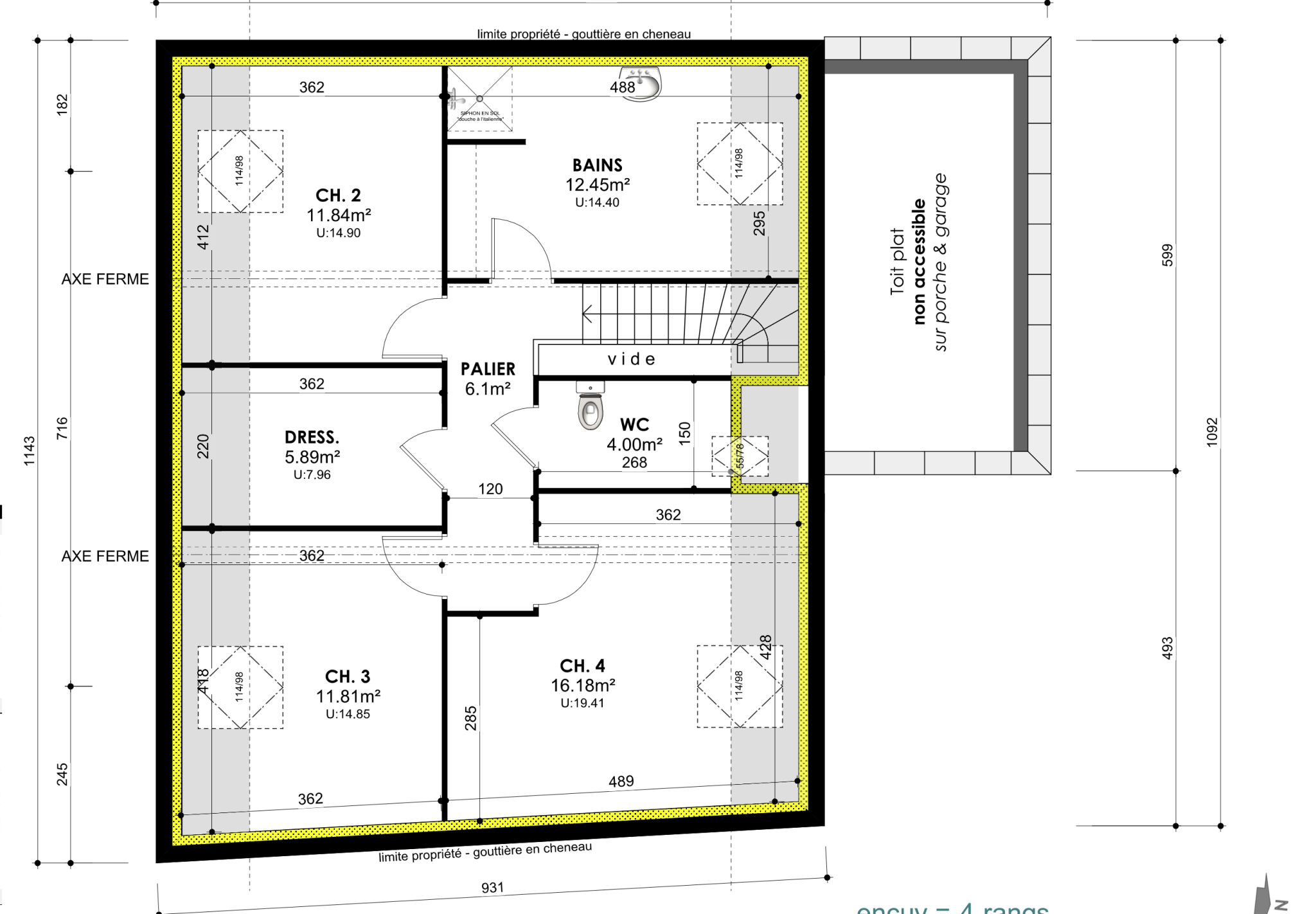
Achat Maison 6 pièces 178m² LA RIVIERE DE CORPS 10440

279 000 Honoraires charge vendeur

4 chambres Jardin Parking / Garage

Description du bien

A La Riviere de Corps, venez découvrir cette superbe maison NEUVE livrée CLES EN MAINS ! La maison fait 146m2 habitables sur la base des plans ci-joints mais l'aménagement intérieur peut être modifié selon vos envies. La maison est livrée hors cuisine, hors peinture et hors parquet dans les chambres mais tout le reste est livré TERMINE ! Les extérieurs sont livrés avec la clôture, les terres remises en place, l'assise pour la terrasse et du concassé compacté devant la maison. La maison est vendue avec la Dommage-Ouvrage et l'étude thermique ainsi que l'étude de sol sont fournies. L'idéal pour une famille qui souhaite réaliser son rêve d'acquisition dans le neuf et bénéficier du Prêt à Taux 0% ! La présente annonce immobilière a été rédigée sous la responsabilité éditoriale de Mme Justine PYS, agent commerciale immatriculée au RSAC de Troyes sous le numéro 539 003 186.

Etat des risques et pollutions

Les informations sur les risques auxquels ce bien est exposé sont disponibles sur le site Géorisques : www.georisques.gouv.fr.

Caractéristiques du bien

Composition du bien

  • Type d'habitation : Maison
  • Nombre de chambres : 4
  • Cuisine : Type de cuisine Non communique

Aménagement du bien

  • Cave : Non
  • Garage / Parking : Oui
    • Surface habitable : 178 m²
    • Parking : Oui

    Localisation du bien

    LA RIVIERE DE CORPS (10440) , AUBE (10) - GRAND-EST

    Ce bien n'est pas géolocalisé, pour connaitre sa géolocalisation, merci de contacter l'agence.

    Consommation énergétique

    DPE non soumis
    mention indiquée sous la responsabilité de l’agence immobilière

    Nos professionnels vous accompagnent

    Contactez notre agence !

    4 avenue Pierre Brossolette 10000 TROYES

    Appeler l’agence Tél : 03 25 72 91 91

    * Champs obligatoires

    Nous vous informons de l’existence de la liste d’opposition au démarchage téléphonique « BLOCTEL » sur laquelle vous pouvez vous inscrire (https://www.bloctel.gouv.fr).

    En complétant le formulaire «CONTACTEZ NOTRE AGENCE », je reconnais expressément que je consens au traitement de mes données personnelles et que je dispose du droit de retirer mon consentement à tout moment en m'adressant à support@fnaim.fr.
    En savoir plus sur la gestion de vos données et droits : consulter nos mentions légales, « article 5/ Données à caractère personnel ».

    En envoyant ce message, vous acceptez les conditions d'utilisation du site. Plus d'infos