Fnaim.fr
Menu

Acheter

Visite virtuelle
Exclusivité
Réf. DOM18585

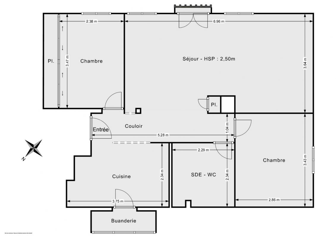
Achat Appartement 3 pièces 63m² MARSEILLE 11ème

149 000 Honoraires charge vendeur

2 chambres Balcon

Description du bien

Liberkeys vous propose en exclusivité cet appartement traversant de 63 m² Carrez, situé dans un secteur en pleine dynamique du 11e arrondissement de Marseille.

À proximité immédiate des commerces, écoles renommées, espaces verts (parc de la Mirabelle) et transports en commun (bus à 250 m, station de métro La Fourragère accessible rapidement), cet appartement offre un cadre de vie pratique et serein.

Il se compose d'un salon lumineux exposé sud, de deux chambres spacieuses, d'une cuisine indépendante avec loggia, d'une salle de bains avec WC, ainsi que d'une cave en sous-sol.

Agencement optimisé, idéal pour une famille ou un jeune couple recherchant confort et praticité.

Les charges de copropriété s'élèvent à 138 € par mois, la taxe foncière à 997 €.

Double vitrage, nombreux rangements et potentiel d'évolution (possibilité d'ouvrir la cuisine sur le séjour) apportent une réelle valeur ajoutée.
Stationnement facile et gratuit sur voirie aux abords, commodités et services à proximité immédiate pour tout faire à pied.

Montant estimé des dépenses annuelles d'énergie pour un usage standard : entre 890 € et 1250 € par an. Prix moyens des énergies indexés sur l'année 2022 (abonnements compris).

Ce bien vous plaît ? Visitez-le virtuellement en 3D sur le site de Liberkeys ou contactez directement votre conseiller. Référence annonce : DOM18585. Date de réalisation du diagnostic : 04/12/2024. Les honoraires sont à la charge du vendeur.

Etat des risques et pollutions

Les informations sur les risques auxquels ce bien est exposé sont disponibles sur le site Géorisques : www.georisques.gouv.fr.

Caractéristiques du bien

Composition du bien

  • Type d'habitation : Appartement
  • Cuisine : Equipée m²
  • Nombre de pièce(s) : 3
  • Nombre de chambre(s) : 2
  • Salles de bain : 1

Aménagement du bien

Extérieur

  • Terrasse : Non
  • Balcon : Oui

Partie Commune

  • Ascenseur : Non
  • Surface habitable : 63 m²

Localisation du bien

MARSEILLE 11 (13011) , BOUCHES-DU-RHONE (13) - PROVENCE-ALPES-COTE-D-AZUR

Consommation énergétique

  • C (173 kWh/m² an)
    A (5 kgCO2/m².an)
    Plus d'info
    173
    5
    5
  • DPE réalisé après le 1er juillet 2021.
  • Entre 890 € TTC / an et 1250 € TTC / an
    Non communiqué

Nos professionnels vous accompagnent

Contactez notre agence !

20 RUE DE MONTHOLON 75009 PARIS 09

Appeler l’agence Tél : 06 38 74 42 80

* Champs obligatoires

Nous vous informons de l’existence de la liste d’opposition au démarchage téléphonique « BLOCTEL » sur laquelle vous pouvez vous inscrire (https://www.bloctel.gouv.fr).

En complétant le formulaire «CONTACTEZ NOTRE AGENCE », je reconnais expressément que je consens au traitement de mes données personnelles et que je dispose du droit de retirer mon consentement à tout moment en m'adressant à support@fnaim.fr.
En savoir plus sur la gestion de vos données et droits : consulter nos mentions légales, « article 5/ Données à caractère personnel ».

En envoyant ce message, vous acceptez les conditions d'utilisation du site. Plus d'infos