Fnaim.fr
Menu

Acheter

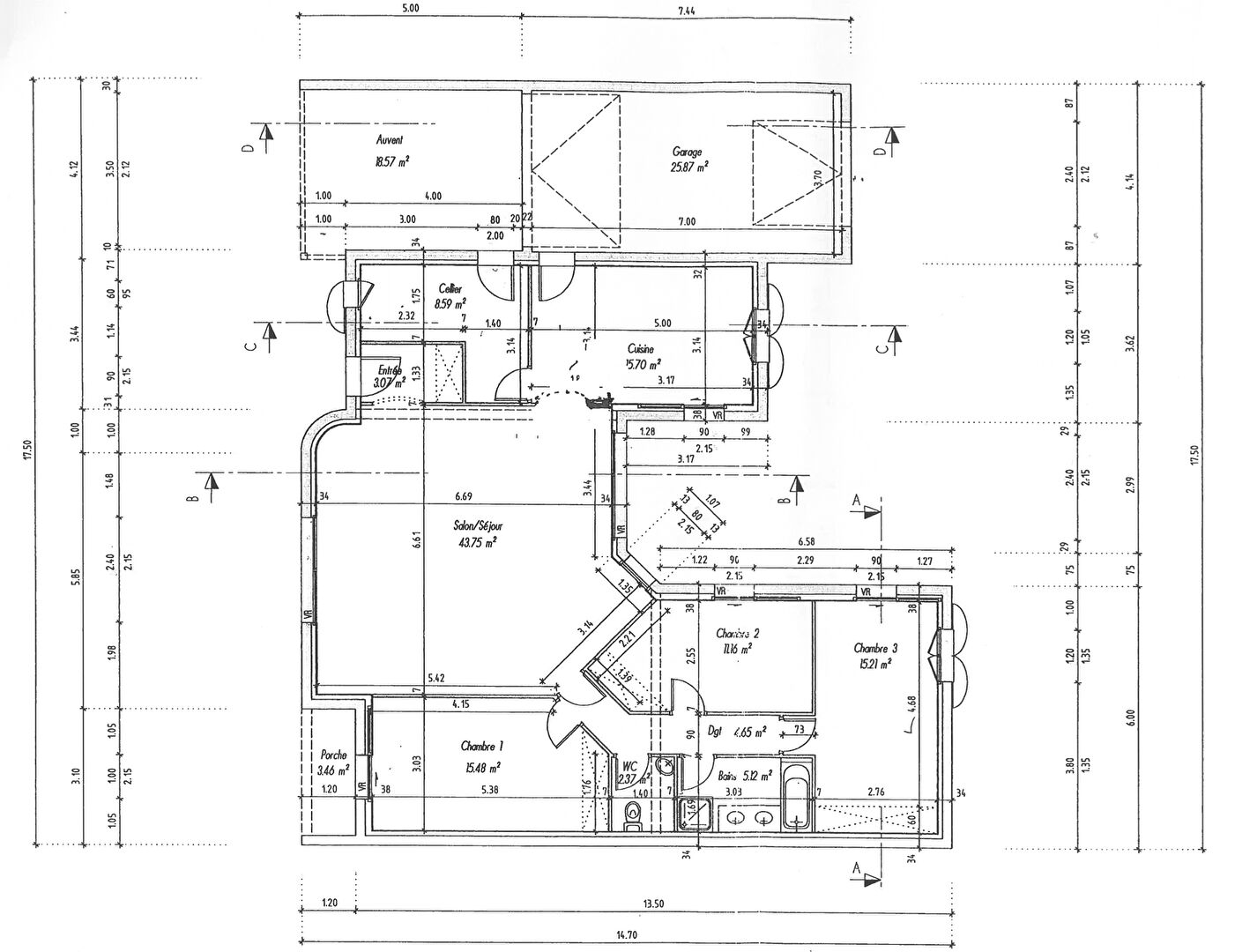
Achat Maison 5 pièces 125m²

509 000 Honoraires charge vendeur

3 chambres Jardin Parking / Garage

Description du bien


PERIGNY - a 5 min de la place de la Pommeraie

Maison contemporaine de 2007 avec un terrain piscinable de 550 m2, parfaitement entretenue et idéalement située

Découvrez cette élégante maison de 125 m², située dans un quartier résidentiel agréable de Périgny. Construite en 2007 et soigneusement entretenue, elle offre un cadre de vie de qualité avec un accès aisé aux commodités environnantes.

Caractéristiques principales :

Spacieux salon/salle à manger de 43 m² avec double orientation et grandes baies vitrées donnant sur la terrasse, pour une vue imprenable sur le jardin paysager.

Cuisine moderne de 15 m², aménagée et équipée, avec accès direct à la terrasse grâce à une baie à galandage, idéale pour les repas en extérieur.

Trois chambres lumineuses (15 m², 15 m², et 11,5 m²) toutes équipées de placards et d'un dressing, optimisant l'espace et le confort.

Salle d'eau fonctionnelle et WC indépendant pour une vie quotidienne facilitée.

Porche pour voiture et grand garage avec galetas et doubles portes électriques, simplifiant l'accès au jardin.

Équipements de confort :

Pompe à chaleur air/air avec unités split récentes pour un climat intérieur toujours agréable. WC supplémentaire envisageable.

Ballon d'eau chaude récent, assurant une gestion efficace de l'énergie.

La parcelle est piscinable, offrant une belle opportunité pour ajouter une piscine et augmenter ainsi la valeur et le plaisir de votre propriété.

Ce bien rare sur le marché constitue une opportunité fantastique pour ceux qui recherchent un mélange de confort moderne et d'agrément extérieur. Visitez cette propriété pour découvrir son potentiel et vous laisser charmer par ses nombreuses qualités.

Etat des risques et pollutions

Les informations sur les risques auxquels ce bien est exposé sont disponibles sur le site Géorisques : www.georisques.gouv.fr.

Caractéristiques du bien

Composition du bien

  • Type d'habitation : Maison
  • Nombre de chambres : 3
  • Cuisine : Type de cuisine Non communique

Aménagement du bien

  • Cave : Non
  • Garage / Parking : Oui
    • Surface habitable : 125 m²
    • Parking : Oui

    Localisation du bien

    Ce bien n'est pas géolocalisé, pour connaitre sa géolocalisation, merci de contacter l'agence.

    Consommation énergétique

    • C (128 kWh/m² an)
      A (4 kgCO2/m².an)
      Plus d'info
      128
      4
      4
    • DPE réalisé après le 1er juillet 2021.
    • Entre 1250 € TTC / an et 1740 € TTC / an
      Non communiqué

    Nos professionnels vous accompagnent

    Contactez notre agence !

    73 rue de l'Aunis 17220 STE SOULLE

    Appeler l’agence Tél : 0516405020

    * Champs obligatoires

    Nous vous informons de l’existence de la liste d’opposition au démarchage téléphonique « BLOCTEL » sur laquelle vous pouvez vous inscrire (https://www.bloctel.gouv.fr).

    En complétant le formulaire «CONTACTEZ NOTRE AGENCE », je reconnais expressément que je consens au traitement de mes données personnelles et que je dispose du droit de retirer mon consentement à tout moment en m'adressant à support@fnaim.fr.
    En savoir plus sur la gestion de vos données et droits : consulter nos mentions légales, « article 5/ Données à caractère personnel ».

    En envoyant ce message, vous acceptez les conditions d'utilisation du site. Plus d'infos