Fnaim.fr
Menu

Acheter

Exclusivité
Réf. 7251

Achat Immeuble 171m²

238 900

Description du bien


Nouvelle exclusivité (Visite virtuelle disponible sur demande).
Idéal investisseur.

Belle opportunité à saisir.
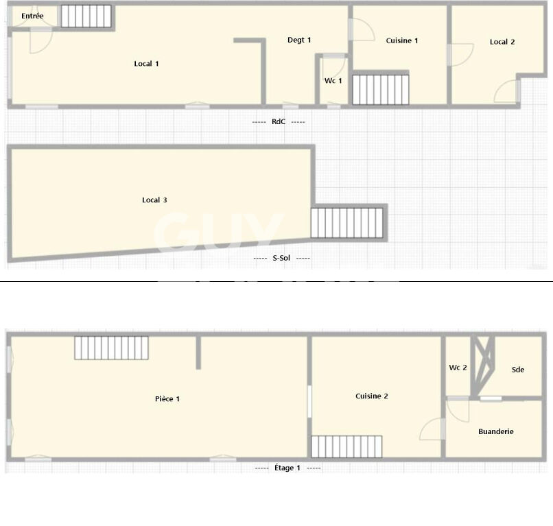
Immeuble en centre-ville composé :
D'un local commercial de 56 m² loué 650 Euro hors charges au rez-de-chaussée.
D'un charmant appartement en duplex de 115 m² loué 720 Euro hors charges à l'étage.

Le local est agencé de la manière suivante :
Une pièce principale avec vitrine, un dégagement, un WC, une cuisine avec un accès à la cave, une pièce supplémentaire.

L'appartement est agencé de la manière suivante :
Un grand salon, une salle à manger, une cuisine équipée et aménagée, une buanderie avec placards intégrés et un espace salle d'eau avec WC.

À l'étage, un palier, une salle de bains, un WC séparé, un dégagement offrant de nombreux rangements, trois chambres.

Chaudière gaz récente
Bonne note énergétique.

Consommation énergie primaire : C
Émission de gaz à effet de serre : C

HONORAIRES CHARGE VENDEUR

Agent commercial: Erhan AKGUN R.S.A.C COLMAR TI 901 912 840

Erhan AKGUN (EI) Agent Commercial - Numéro RSAC : 901912840 - COLMAR.

Etat des risques et pollutions

Les informations sur les risques auxquels ce bien est exposé sont disponibles sur le site Géorisques : www.georisques.gouv.fr.

Caractéristiques du bien

Composition du bien

  • Type d'habitation : Immeuble
  • Surface totale : 171 m²

Aménagement du bien

Partie Commune

  • Ascenseur : Non
  • Accès digicode : Non

Localisation du bien

Ce bien n'est pas géolocalisé, pour connaitre sa géolocalisation, merci de contacter l'agence.

Consommation énergétique

  • C (118 kWh/m² an)
    C (25 kgCO2/m².an)
    Plus d'info
    118
    25
    25
  • DPE réalisé après le 1er juillet 2021.
  • Non communiqué
    Non communiqué

Nos professionnels vous accompagnent

Contactez notre agence !

1 Place du général de Gaulle 67600 SELESTAT

Appeler l’agence Tél : 0390572909

* Champs obligatoires

Nous vous informons de l’existence de la liste d’opposition au démarchage téléphonique « BLOCTEL » sur laquelle vous pouvez vous inscrire (https://www.bloctel.gouv.fr).

En complétant le formulaire «CONTACTEZ NOTRE AGENCE », je reconnais expressément que je consens au traitement de mes données personnelles et que je dispose du droit de retirer mon consentement à tout moment en m'adressant à support@fnaim.fr.
En savoir plus sur la gestion de vos données et droits : consulter nos mentions légales, « article 5/ Données à caractère personnel ».

En envoyant ce message, vous acceptez les conditions d'utilisation du site. Plus d'infos