Fnaim.fr
Menu

Acheter

Réf. TAPP526161

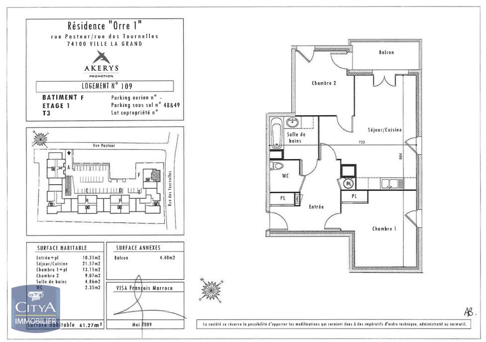
Achat Appartement 3 pièces 61m² VILLE LA GRAND 74100

230 000 Honoraires charge vendeur

2 chambres Ascenseur Parking / Garage

Description du bien

A 6mn à pied du CEVA / 3 pièces (T3) de 62m2 dans une résidence sécurisée et venant deux places de parkings en sous-sol - PROCHE CEVA - 3 PIÈCES (T3) - Balcon , 2 places de parking

En vente : CITYA VALP'IMMO vous propose cet appartement de 3 pièces exposé nord-est de 62 m² situé à Ville-la-Grand (74100).
Cet appartement au calme se situe dans la copropriété ORRE 1, une résidence à accès sécurisé
Le logement présente une pièce de vie de 22 m² et deux chambres de 13m² et 09 m²
Un balcon de 5m² en orientation nord-est ainsi que 2 places de parking en sous-sol complète le lot.
Cet appartement est équipé d'un chauffage et d'eau chaude sanitaire individuel alimenté à l'électricité.

Côté transport: arrêt de bus au pied de l'immeuble, gare SNCF avec CEVA à 5 mn à pied
Tous types d'établissements scolaires à proximité (maternelle, élémentaire et secondaire) dans la commune.

Votre agence vous invite à découvrir toutes les originalités de cet appartement en vente en prenant RDV avec Laurent Chevalier par email lchevalier@citya.com ou au 06 29 37 62 06. A bientôt. Le bien est soumis au statut de la copropriété , la copropriété comporte 116 lots , la quote-part budget prévisionnel (dépenses courantes) est de 1 392,00 euros/an.
Honoraires à la charge du vendeur.
Vous pouvez consulter les barèmes d'honoraires à l'adresse suivante : https://www.citya.com/agences-immobilieres/annemasse-74100/199 . Montant estimé des dépenses annuelles d'énergie pour un usage standard : entre 770 et 1 100 euros. Prix moyens des énergies indexés en 2021. Les informations sur les risques auxquels ce bien est exposé sont disponibles sur le site Géorisques : https://www.georisques.gouv.fr

Etat des risques et pollutions

Les informations sur les risques auxquels ce bien est exposé sont disponibles sur le site Géorisques : www.georisques.gouv.fr.

Caractéristiques du bien

Composition du bien

  • Type d'habitation : Appartement
  • Cuisine : 337
  • Nombre de pièce(s) : 3
  • Nombre de chambre(s) : 2
  • Salles de bain : 1

Aménagement du bien

Extérieur

  • Terrasse : Non
  • Balcon : Non

Partie Commune

  • Ascenseur : Oui
  • Surface habitable : 61 m²
  • Parking : Oui

Informations sur la copropriété

  • Bien soumis au statut de la copropriété
  • Nombre de lots : 116
  • Quote part charges courantes : 1392 €/an
  • Procédure en cours : Non

Localisation du bien

VILLE LA GRAND (74100) , HAUTE-SAVOIE (74) - AUVERGNE-RHÔNE-ALPES

Ce bien n'est pas géolocalisé, pour connaitre sa géolocalisation, merci de contacter l'agence.

Consommation énergétique

  • D (200 kWh/m² an)
    B (6 kgCO2/m².an)
    Plus d'info
    200
    6
    6
  • DPE réalisé après le 1er juillet 2021.
  • Entre 770 € TTC / an et 1100 € TTC / an
    01/01/2021

Nos professionnels vous accompagnent

Contactez notre agence !

9, rue de la Gare 74100 ANNEMASSE

Appeler l’agence Tél : 04 50 92 13 23

* Champs obligatoires

Nous vous informons de l’existence de la liste d’opposition au démarchage téléphonique « BLOCTEL » sur laquelle vous pouvez vous inscrire (https://www.bloctel.gouv.fr).

En complétant le formulaire «CONTACTEZ NOTRE AGENCE », je reconnais expressément que je consens au traitement de mes données personnelles et que je dispose du droit de retirer mon consentement à tout moment en m'adressant à support@fnaim.fr.
En savoir plus sur la gestion de vos données et droits : consulter nos mentions légales, « article 5/ Données à caractère personnel ».

En envoyant ce message, vous acceptez les conditions d'utilisation du site. Plus d'infos