Fnaim.fr
Menu

Acheter

Réf. VAP10001217

Achat Appartement 2 pièces 56m² CAEN 14000

433 686 Honoraires charge vendeur

1 chambre Parking / Garage

Description du bien

Caen, appartement à vendre de deux pièces principales en résidence de standing rehabilitée, fiscalité des monuments historiques, possibilité de réduction d'impôts jusqu'a 90 000e (selon votre TMI) en investissement ou 45 000EUR en occupation (ou 100% avec ouverture gratuite occasionnelle aux publics), obligation de détention de 15 ans.
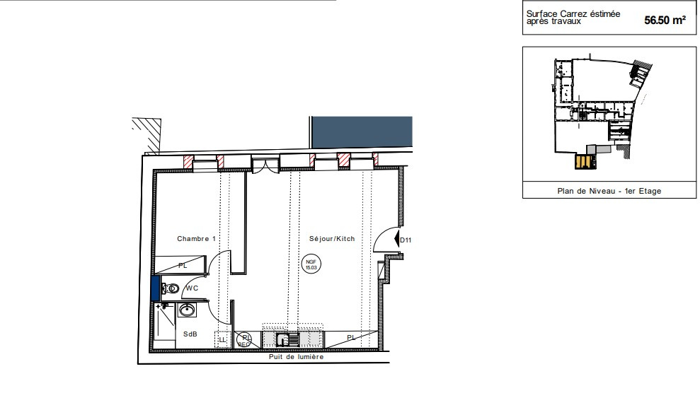
Dans le Cadre exceptionnel de l'ancien couvent de la Visitation, rue caponière, il offre une surface de 56.50m2 habitables, il est composée d'une entrée dans un grand séjour cuisine de 35m2, une chambre, une salle de douches, wc séparés. Chauffage électrique.
Parking extèrieur dans une cour privée fermée.
dpe non applicable aux monuments historiques

Quote part annuelle de charges : 650EUR

Prix du bien : 433686EUR, honoraires à la charge du vendeur.
Les informations sur les risques auxquels ce bien est exposé sont disponibles sur le site georisques.gouv.fr.
Cabinet QUESNEE 02.31.34.08.50

Etat des risques et pollutions

Les informations sur les risques auxquels ce bien est exposé sont disponibles sur le site Géorisques : www.georisques.gouv.fr.

Caractéristiques du bien

Composition du bien

  • Type d'habitation : Appartement
  • Cuisine : 402
  • Nombre de pièce(s) : 2
  • Nombre de chambre(s) : 1

Aménagement du bien

Extérieur

  • Terrasse : Non
  • Balcon : Non

Partie Commune

  • Ascenseur : Non
  • Surface habitable : 56 m²
  • Parking : Oui

Localisation du bien

CAEN (14000) , CALVADOS (14) - NORMANDIE

Ce bien n'est pas géolocalisé, pour connaitre sa géolocalisation, merci de contacter l'agence.

Consommation énergétique

DPE non soumis
mention indiquée sous la responsabilité de l’agence immobilière

Nos professionnels vous accompagnent

Contactez notre agence !

42 avenue du Six-Juin 14000 CAEN

Appeler l’agence Tél : 02.31.34.08.50

* Champs obligatoires

Nous vous informons de l’existence de la liste d’opposition au démarchage téléphonique « BLOCTEL » sur laquelle vous pouvez vous inscrire (https://www.bloctel.gouv.fr).

En complétant le formulaire «CONTACTEZ NOTRE AGENCE », je reconnais expressément que je consens au traitement de mes données personnelles et que je dispose du droit de retirer mon consentement à tout moment en m'adressant à support@fnaim.fr.
En savoir plus sur la gestion de vos données et droits : consulter nos mentions légales, « article 5/ Données à caractère personnel ».

En envoyant ce message, vous acceptez les conditions d'utilisation du site. Plus d'infos