Fnaim.fr
Menu

Acheter

Réf. VA5971-BIENALAMER

Achat Appartement 3 pièces 65m² CROZON 29160

267 900 Honoraires charge vendeur

2 chambres Ascenseur Parking / Garage

Description du bien

Rare : Plein Coeur de ville, tous commerces à pied.
Belle Résidence en construction centre de CROZON :
Suite au succès commercial de la 1è tranche, lancement de la nouvelle pour livraison fin 2027.

Résidence RE2020 et certifiée NF HABITAT.
Frais de notaire réduits.
Ascenseur, chauffage par Pompe à chaleur, parking sous sol, résidence sécurisée, volets roulants électriques, douches à l'italienne, local vélo : tout a été pensé pour votre confort.

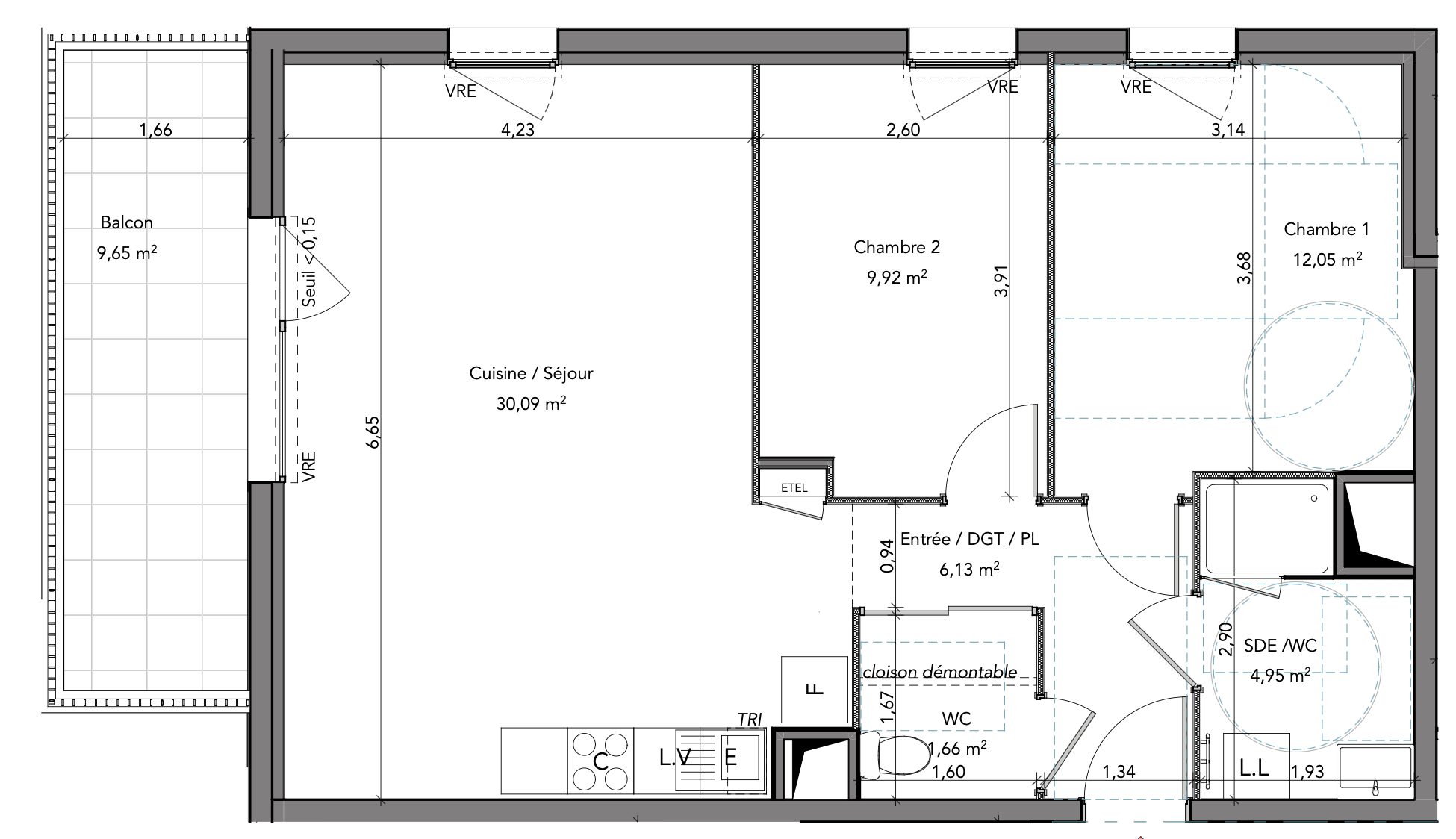
Ce beau T3 de 64,8m2 offre :
- Séjour de 30,9m2 avec double expo sud et ouest, terrasse 9,65m2
- Deux chambres 12,05-9,95m2
- salle d'eau douche sèche serviette vasque 4,95m2
- wc séparés
- entrée avec placard 6m2
- parking inclus

Nous consulter.

Honoraires à la charge du vendeur. Non soumis au DPE. Les informations sur les risques auxquels ce bien est exposé sont disponibles sur le site Géorisques : georisques.gouv.fr.

Votre conseiller MON BIEN A LA MER : Gérant - .fr MON BIEN A LA MER
Carte T CPI 2201 2018 000 025 040
RCP ACM IARD B1 7025278

Etat des risques et pollutions

Les informations sur les risques auxquels ce bien est exposé sont disponibles sur le site Géorisques : www.georisques.gouv.fr.

Caractéristiques du bien

Composition du bien

  • Type d'habitation : Appartement
  • Nombre de pièce(s) : 3
  • Nombre de chambre(s) : 2

Aménagement du bien

Extérieur

  • Terrasse : Non
  • Balcon : Non

Partie Commune

  • Ascenseur : Oui
  • Surface habitable : 65 m²
  • Parking : Oui

Localisation du bien

CROZON (29160) , FINISTERE (29) - BRETAGNE

Ce bien n'est pas géolocalisé, pour connaitre sa géolocalisation, merci de contacter l'agence.

Consommation énergétique

DPE non soumis
mention indiquée sous la responsabilité de l’agence immobilière

Nos professionnels vous accompagnent

Contactez notre agence !

23 Rue des Villeneuves Le Bignon 22400 MORIEUX

Appeler l’agence Tél : 0787285150

* Champs obligatoires

Nous vous informons de l’existence de la liste d’opposition au démarchage téléphonique « BLOCTEL » sur laquelle vous pouvez vous inscrire (https://www.bloctel.gouv.fr).

En complétant le formulaire «CONTACTEZ NOTRE AGENCE », je reconnais expressément que je consens au traitement de mes données personnelles et que je dispose du droit de retirer mon consentement à tout moment en m'adressant à support@fnaim.fr.
En savoir plus sur la gestion de vos données et droits : consulter nos mentions légales, « article 5/ Données à caractère personnel ».

En envoyant ce message, vous acceptez les conditions d'utilisation du site. Plus d'infos